
相同品質,花錢更少
同社區、同格局,讓您以最低的價格買到。

熱門搶手,更多人看
無論您是看屋新手還是專家,讓您第一時間獲取最新最熱的好房源。

找房記得認準【必看好屋】標識
🔺總戶數:83戶,二梯四戶
🔺學區:上安國小,至善國中
🔺12期重劃區,水湳經貿園區~中科商圈重要樞紐帶,逢甲黎明生活圈
🔺國一交流道、74號環線旁生活圈,鬧中取靜
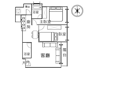
🔺精緻裝潢溫馨寧靜,面朝中庭安靜不吵,2房2衛好便利
🔺B1平面大車位+機車位;社區籃球場
🔺解鎖南十二期最好住生活:楓康超市、全聯、壽司郎、星巴克
+line ID :0931-591-495 陳彥志 洽詢
佳禾地產有限公司 中市地易第1130020907
(107)中市經紀字第01296號 郭旆汝